永和伯爵辦公室裝修工程
| 項目名稱 | 永和伯爵辦公室裝修工程 | 行業屬性 | 互聯網/電商/科技 |
| 項目地址 | 鄭東新區金水東路永和伯爵 | 項目造價 | 89.6萬 |
| 主關鍵詞 |
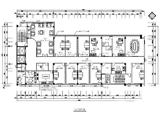
▄原建筑結構分析: 本項目建筑面積為300平米。設計師在設計中大量采用暖色調,將現代元素和傳統元素進行融合,打造簡潔明快的現代空間氛圍,對空間進行合理布局的同時,建立功能區明確、舒適高效的辦公空間。
▄設計需求: 永和伯爵寫字樓,主要以經營金融投資為主,甲方需要的項目功能區為接待大廳、員工辦公區、總經理辦公區、董事長辦公室、洽談區、會議室、休息區、茶水間、儲物間、洗手間等。我們的設計師根據甲方的溝通結果設計了平面布局圖。
▄設計風格定位: 隨著技術的發展以及公司所處的內外部環境的變動,目前的辦公室裝修設計呈現出以下一些潮流。 一是要求辦公室裝修比較實用、簡約的風格。 二是要求辦公室裝修體現非常高的透明度,在設計上要能夠讓每個部門彼此看到對方在做什么。 三是辦公室裝修設計淡化等級觀念,尤其是在高科技公司,越來越淡化辦公空間的等級界限。過去,辦公室設計往往把人們享有的空間分為5個等級,現在已經簡化為3個等級。 辦公空間的布局、通風、采光、人流線路、色調設計等等,對工作人員的精神狀態及工作效率影響很大,過去陳舊的辦公空間設計已不再適應新的需求,此案例在地板及辦公家具上多采用高飽和的暖色調,打破傳統辦公室沉靜的冷色調,讓人在工作中體會到溫暖與放松。


北京鑄誠大廈辦公裝修工程
北京銀河SOHO辦公裝修工程
301醫院裝修工程
